Mástil captador con el cable HVI

Para una longitud máxima libre del elemento captador total de 8,5 m.
Debe hacerse la fijación con tres soportes variables (Art Nº 105 345).

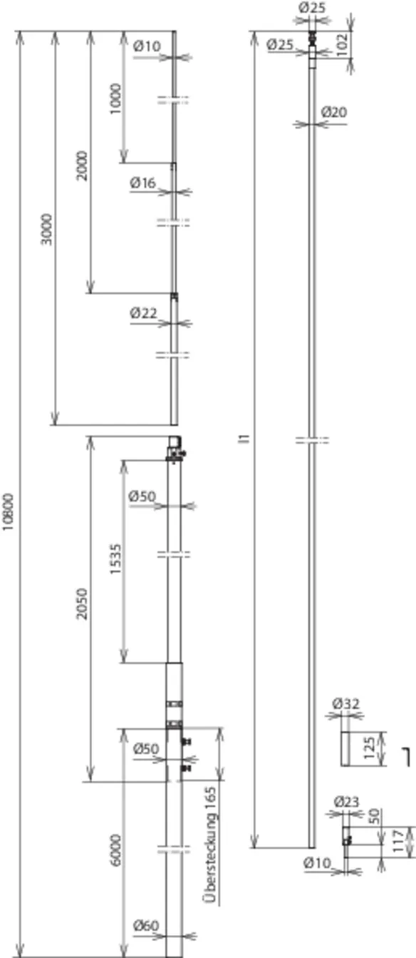
El mástil captador modular consta de:
– punta captadora Al Ø22 / 16 / 10 mm, longitud 3000 mm
– tubo aislante autosoportado en poliéster reforzado con fibra de vidrio/Al Ø50 / 60 mm, longitud 2100 mm (prolongación 200 mm)
– Tubo del mástil St/tZn Ø60 mm, longitud 6000 m con tornillos de bloqueo M10 en acero inoxidable
– Cable HVI tendido interiormente
– Longitud de transporte 6000 mm

Mástil captador con cable HVI

Versión con 1 x cable HVI tendido interiormente. Indicar la longitud de cable al efectaur el pedido (en múltiplos de 0,5 m).

Longitud total máxima del cable HVI 12,5 m con clase de protección II de la instalación de protección contra rayos.
Longitud total máxima del cable HVI 18,5 m con clase de protección III de la instalación de protección contra rayos.

1 Producto

N.º art. 819730 FM 60 L11M IP HVI M L10M GFK AL STTZN

GTIN 4013364243477, N.º de arancel aduanero (EU): 85389099, Peso bruto: 53.54 kg, Empaquetado: 1.00 unidad(es)

Predecesor

Figuras

Más información

Mástiles captadores con el cable HVI
Mástiles captadores con el cable HVI
Electrodo de dispersión aislado
resistente a la alta tensión
para mantener la distancia de separación
de partes con conductividad eléctrica
según la DIN EN 62305-3 (VDE 0185-305-3)
Especialmente para su utilización con p. ej. fermentadores
o almacenamientos subterráneos de gas de plantas de biogás
según el nivel de protección II del sistema de protección contra rayos.
Los mástiles captadores están dimensionados según
el eurocódigo 1 (DIN EN 1991-1-4 + DIN EN 1991-1-4/NA).
La instalación captadora se compone de:
- varilla captadora Al Ø22/16/10 mm, longitud de 3000 mm
- tubo autosoportado PRFV/Al Ø50/60 mm
- mástil (tubo) St/tZn Ø60 mm
más
3 piezas de soportes variables (Art.-Nr. 105 345)
Máx. longitud libre de la completa instalación captadora de 8,5 m.
Versión con 1x cable tendido en el interior,
Mín. longitud de pedido 10,0 m.
La longitud adicional requerida del cable HVI
tiene que pedirse separadamente.
Máx. longitud total de los cables HVI (LPS II) 12,5 m.
Máx. longitud total de los cables HVI (LPS III) 18,5 m.
Longitud total del mástil captador: 10800 mm
Lungitud de la punta captadora: 3000 mm
Longitud del tubo aislante autosoportado: 2100 mm
Longitud del tubo de mástil: 6000 mm
Diámetro Ø del conductor: 20 mm
Color del cable: negro ●
Material del cable: Cu
Longitud mín. de pedido : 10 m
Máx. velocidad del viento : (máx. longitud libre 8500 mm, 1x HVI en el interior) 156 km/h
Normativa: DIN IEC/TS 62561-8 (VDE V 0185-561-8)

Producto DEHN
Tipo: FM 60 L11M IP HVI M L10M GFK AL STTZN
art. no.: 819730
o equivalente

Certificados

 

Datos técnicos

Longitud total del mástil captador 10800 mm
Lungitud de la punta captadora 3000 mm
Longitud del tubo aislante autosoportado 2100 mm
Longitud del tubo de mástil 6000 mm
Color del cable negro ●
Longitud mín. de pedido 10 m
Normativa DIN IEC/TS 62561-8 (VDE V 0185-561-8)

Se ha añadido el artículo 819730 a favoritos.

El artículo 819730 ha sido añadido a la cesta de compra.


back to top