Mástil captador para el tendido del cable HVI light bajo el tejado

Para montaje en vigas del tejado.Tendido interior del cable HVI light en tubo de soporte. El cable HVI light se lleva a través del tubo de soporte vertical y se tienden en la zona de las traviesas.Ventajas:
  • Tendido bajo el tejado: no es visible
  • Montaje con solo un tubo visible
  • No hay solicitaciones mecánicas por ej. por nieve
La longitud mínima de pedido es 6 m. Debe indicarse la longitud del conductor en el pedido (en múltiplos de 0,5 m).Por la producción relacionada al pedido (confección de la longitud del cable) el cable no puede restituirse.

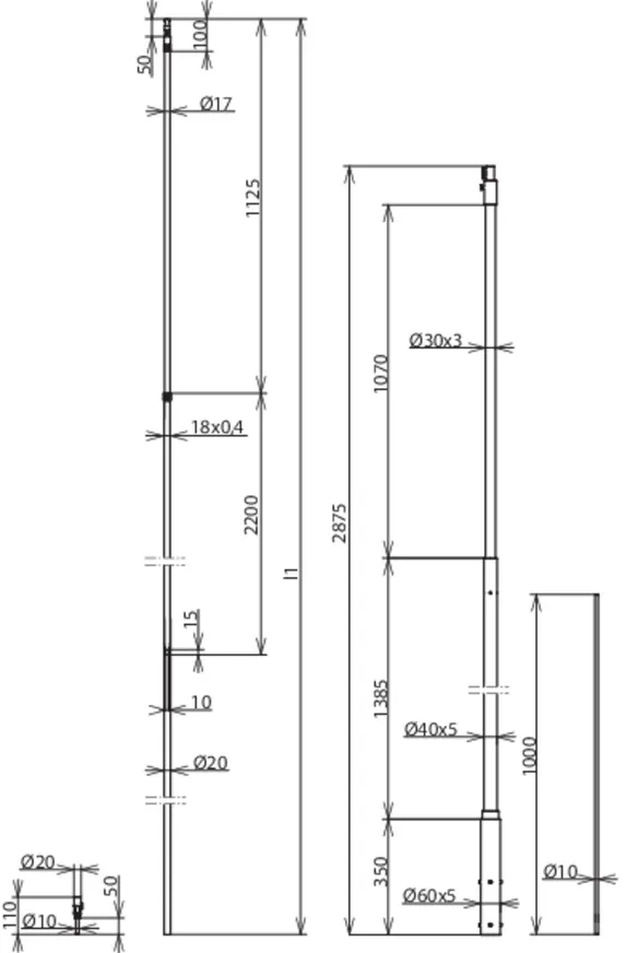
DEHNcon-H/cable HVI light en el tubo de soporte con punta captadora

Con terminal interior del cable y punta captadora Ø10 mm.

1 Producto

N.º art. 819243 HVI LI 20 L6M SR2875 FSP1000 DSH GFK AL

GTIN 4013364255951, N.º de arancel aduanero (EU): 85389099, Peso bruto: 9.24 kg, Empaquetado: 1.00 unidad(es)

Predecesor

Figuras

Más información

Mástil captador para el tendido del cable HVI light bajo el tejado.
Mástil captador con el cable HVI light y punta captadora
para el tendido bajo el tejado para el montaje sobre el soporte
de conductor para vigas
El cable HVI light se tiende por el tubo de soporte vertical
del soporte de conductor para vigas y en la zona de las traviesas.
Los tubos de soporte están dimensionados según
el eurocódigo 1 (DIN EN 1991-1-4 + DIN EN 1991-1-4/NA).
DEHNcon-H cable HVI light en el tubo de soporte,
con terminal especial en el interior y punta captadora Ø10 mm
longitud de 1000 mm
Material del tubo de soporte: poliéster reforzado con fibra de vidrio / Al
Longitud del tubo de soporte: 2875 mm
Color del cable: gris ●
Material del cable: Cu
Distancia de separación equivalente (en aire): ≤ 45 cm
Longitud mínima de pedido : 6 m
Máx. velocidad del viento : 149 km/h
Normativa: DIN IEC/TS 62561-8 (VDE V 0185-561-8)

Producto DEHN
Tipo: HVI LI 20 L6M SR2875 FSP1000 DSH GFK AL
art. no.: 819243
o equivalente

Certificados

 

Datos técnicos

Material del tubo de soporte poliéster reforzado con fibra de vidrio / Al
Longitud del tubo de soporte 2875 mm
Longitud de la punta captadora 1000 mm
Diámetro Ø exterior GRP 30 mm
Diámetro Ø del cable 20 mm
Color del cable gris
Material del cable Cu
Distancia de separación equivalente (en aire) ≤ 45 cm
Longitud mínima de pedido 6 m
Máx. velocidad del viento 149 km/h
Normativa DIN IEC/TS 62561-8 (VDE V 0185-561-8)

Se ha añadido el artículo 819243 a favoritos.

El artículo 819243 ha sido añadido a la cesta de compra.


back to top