Distanciador DEHNiso

Programa variado de soportes para conductores y puntas captadoras para asegurar la distancia de separación según EN 62305-3 (VDE 0185-305-3).

Distanciador de poliéster reforzado con fibra de vidrio, Ø16 mm, probada contra rayos UV, color gris alba, margen de temperatura permanente -50 °C hasta +100 °C

La distancia de separación (longitud del distanciador) se define con el factor de material km = 0,7.
1 m de distanciador corresponde a una distancia de aislamiento equivalente de 0,7 m.

Los distanciadores DEHNiso cumplen los requerimientos según DIN/IEC TS 62561-8.

Detalles

Distanciador con pieza sobrepuesta, casquillo de fijación y cinta tensora.
lorem ipsum
Soporte angular variable con abrazadera.
lorem ipsum
Soporte angular con borna de conexión.
lorem ipsum

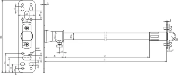
Con soporte para picas y placa de sujeción

Guiado fijo del conductor.

3 Productos

N.º art. 106115 DIDH 16 530 BP V2A GFK

GTIN 4013364100213, N.º de arancel aduanero (EU): 85389099, Peso bruto: 488.00 g, Empaquetado: 1.00 unidad(es)


Figuras

Más información

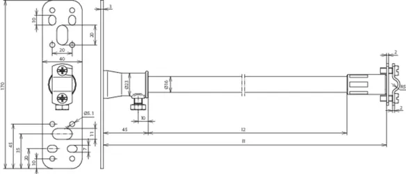
Distanciador DEHNiso con soporte para picas longitud 530 mm INOX
Distanciador DEHNiso para fijar varillas captadoras,
por ejemplo, en equipos de aire acondicionado o elementos estructurales
para cumplir la distancia de separación respecto de los componentes
conductores según DIN EN 62305-3 (VDE 0185-305-3)
Barra distanciadora (distancia de aislamiento) de poliéster
reforzado con fibra de vidrio (PRFV) Ø16 mm,
Factor de material km = 0,7
Color gris alba, estabilizado a rayos ultravioleta.
Las dimensiones de los distanciadores se realizan según
el Eurocódigo 1 (DIN EN 1991-1-4 + DIN EN 1991-1-4/NA)
en combinación con una varilla captadora de 16/10 mm
(longitud libre de 2,0 m / longitud de sujeción de 0,5 a 1,0 m)
con zócalo de hormigón de 17 kg.
Inserción del soporte de conductores Rd: 16 mm
Material del soporte de conductores: INOX
Longitud: 530 mm
Distancia de aislamiento: 445 mm
Margen de temperatura permanente: -50 °C ... +100 °C
Normativa: DIN IEC/TS 62561-8 (VDE V 0185-561-8)

Producto DEHN
Tipo: DIDH 16 530 BP V2A GFK
art. no.: 106115
o equivalente

Certificados

 

Datos técnicos

Inserción del soporte de conductores Rd 16 mm
Material del soporte de conductores INOX
Longitud (l1) 530 mm
Distancia de aislamiento (l2) 445 mm
Sujeción [8x] Ø5,1 / [4x] 7 x 10 / [2x] 11 x 20 mm
Margen de temperatura permanente -50 °C ... +100 °C
Normativa DIN IEC/TS 62561-8 (VDE V 0185-561-8)

Se ha añadido el artículo 106115 a favoritos.

El artículo 106115 ha sido añadido a la cesta de compra.

N.º art. 106120 DIDH 16 690 BP V2A GFK

GTIN 4013364092945, N.º de arancel aduanero (EU): 85389099, Peso bruto: 552.00 g, Empaquetado: 1.00 unidad(es)


Figuras

Más información

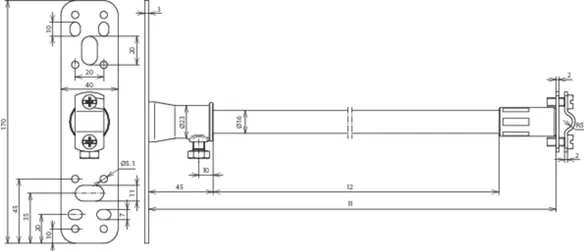
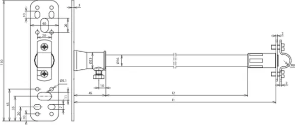
Distanciador DEHNiso con soporte para picas longitud 690 mm INOX
Distanciador DEHNiso para fijar varillas captadoras,
por ejemplo, en equipos de aire acondicionado o elementos estructurales
para cumplir la distancia de separación respecto de los componentes
conductores según DIN EN 62305-3 (VDE 0185-305-3)
Barra distanciadora (distancia de aislamiento) de poliéster
reforzado con fibra de vidrio (PRFV) Ø16 mm,
Factor de material km = 0,7
Color gris alba, estabilizado a rayos ultravioleta
Las dimensiones de los distanciadores se realizan según
el Eurocódigo 1 (DIN EN 1991-1-4 + DIN EN 1991-1-4/NA)
en combinación con una varilla captadora de 16/10 mm
(longitud libre de 2,0 m / longitud de sujeción de 0,5 a 1,0 m)
con zócalo de hormigón de 17 kg.
Inserción del soporte de conductores Rd: 16 mm
Material del soporte de conductores: INOX
Longitud: 690 mm
Distancia de aislamiento: 605 mm
Margen de temperatura permanente: -50 °C ... +100 °C
Normativa: DIN IEC/TS 62561-8 (VDE V 0185-561-8)

Producto DEHN
Tipo: DIDH 16 690 BP V2A GFK
art. no.: 106120
o equivalente

Certificados

 

Datos técnicos

Inserción del soporte de conductores Rd 16 mm
Material del soporte de conductores INOX
Longitud (l1) 690 mm
Distancia de aislamiento (l2) 605 mm
Sujeción [8x] Ø5,1 / [4x] 7 x 10 / [2x] 11 x 20 mm
Margen de temperatura permanente -50 °C ... +100 °C
Normativa DIN IEC/TS 62561-8 (VDE V 0185-561-8)

Se ha añadido el artículo 106120 a favoritos.

El artículo 106120 ha sido añadido a la cesta de compra.

N.º art. 106123 DIDH 16 1030 BP V2A GFK

GTIN 4013364100220, N.º de arancel aduanero (EU): 85389099, Peso bruto: 686.00 g, Empaquetado: 1.00 unidad(es)


Figuras

Más información

Distanciador DEHNiso con soporte para picas longitud 1030 mm INOX
Distanciador DEHNiso para fijar varillas captadoras,
por ejemplo, en equipos de aire acondicionado o elementos estructurales
para cumplir la distancia de separación respecto de los componentes
conductores según DIN EN 62305-3 (VDE 0185-305-3)
Barra distanciadora (distancia de aislamiento) de poliéster
reforzado con fibra de vidrio (PRFV) Ø16 mm,
Factor de material km = 0,7
Color gris alba, estabilizado a rayos ultravioleta.
Las dimensiones de los distanciadores se realizan según
el Eurocódigo 1 (DIN EN 1991-1-4 + DIN EN 1991-1-4/NA)
en combinación con una varilla captadora de 16/10 mm
(longitud libre de 2,0 m / longitud de sujeción de 0,5 a 1,0 m)
con zócalo de hormigón de 17 kg.
Inserción del soporte de conductores Rd: 16 mm
Material del soporte de conductores: INOX
Longitud: 1030 mm
Distancia de aislamiento: 945 mm
Margen de temperatura permanente: -50 °C ... +100 °C
Normativa: DIN IEC/TS 62561-8 (VDE V 0185-561-8)

Producto DEHN
Tipo: DIDH 16 1030 BP V2A GFK
art. no.: 106123
o equivalente

Certificados

 

Datos técnicos

Inserción del soporte de conductores Rd 16 mm
Material del soporte de conductores INOX
Longitud (l1) 1030 mm
Distancia de aislamiento (l2) 945 mm
Sujeción [8x] Ø5,1 / [4x] 7 x 10 / [2x] 11 x 20 mm
Margen de temperatura permanente -50 °C ... +100 °C
Normativa DIN IEC/TS 62561-8 (VDE V 0185-561-8)

Se ha añadido el artículo 106123 a favoritos.

El artículo 106123 ha sido añadido a la cesta de compra.


Con soporte de conductores y placa de sujeción

Guiado fijo del conductor.

3 Productos

N.º art. 106090 DIDH 7.10 530 BP V2A GFK

GTIN 4013364100190, N.º de arancel aduanero (EU): 85389099, Peso bruto: 470.00 g, Empaquetado: 1.00 unidad(es)


Figuras

Más información

Distanciador DEHNiso con soporte de conductores longitud 530 mm INOX
Distanciador DEHNiso para fijar conductores,
por ejemplo, en equipos de aire acondicionado o elementos estructurales
para cumplir la distancia de separación respecto de los componentes
conductores según DIN EN 62305-3 (VDE 0185-305-3)
Barra distanciadora (distancia de aislamiento) de poliéster
reforzado con fibra de vidrio (PRFV) Ø16 mm,
Factor de material km = 0,7
Color gris alba, estabilizado a rayos ultravioleta.
Las dimensiones de los distanciadores se realizan según
el Eurocódigo 1 (DIN EN 1991-1-4 + DIN EN 1991-1-4/NA) para una
máx. velocidad de rachas de viento (distancia de soportes 1,0 m, Al D 8-10 mm)
de 240 km/h.
Inserción del soporte de conductores Rd: 7-10 mm
Material del soporte de conductores: INOX
Longitud: 530 mm
Distancia de aislamiento: 445 mm
Margen de temperatura permanente: -50 °C ... +100 °C
Normativa: DIN IEC/TS 62561-8 (VDE V 0185-561-8)

Producto DEHN
Tipo: DIDH 7.10 530 BP V2A GFK
art. no.: 106090
o equivalente

Certificados

 

Datos técnicos

Inserción del soporte de conductores Rd 7-10 mm
Material del soporte de conductores INOX
Longitud (l1) 530 mm
Distancia de aislamiento (l2) 445 mm
Sujeción [8x] Ø5,1 / [4x] 7 x 10 / [2x] 11 x 20 mm
Margen de temperatura permanente -50 °C ... +100 °C
Máx. velocidad de rachas de viento (distancia de soportes 1000 mm, Al Ø8 mm) 240 km/h
Normativa DIN IEC/TS 62561-8 (VDE V 0185-561-8)

Se ha añadido el artículo 106090 a favoritos.

El artículo 106090 ha sido añadido a la cesta de compra.

N.º art. 106100 DIDH 7.10 690 BP V2A GFK

GTIN 4013364092907, N.º de arancel aduanero (EU): 85389099, Peso bruto: 544.80 g, Empaquetado: 1.00 unidad(es)


Figuras

Más información

Distanciador DEHNiso con soporte de conductores longitud 690 mm INOX
Distanciador DEHNiso para fijar conductores,
por ejemplo, en equipos de aire acondicionado o elementos estructurales
para cumplir la distancia de separación respecto de los componentes
conductores según DIN EN 62305-3 (VDE 0185-305-3)
Barra distanciadora (distancia de aislamiento) de poliéster
reforzado con fibra de vidrio (PRFV) Ø16 mm,
Factor de material km = 0,7
Color gris alba, estabilizado a rayos ultravioleta.
Las dimensiones de los distanciadores se realizan según
el Eurocódigo 1 (DIN EN 1991-1-4 + DIN EN 1991-1-4/NA) para una
máx. velocidad de rachas de viento (distancia de soportes 1,0 m, Al D 8-10 mm)
de 198 km/h.
Inserción del soporte de conductores Rd: 7-10 mm
Material del soporte de conductores: INOX
Longitud: 690 mm
Distancia de aislamiento: 605 mm
Margen de temperatura permanente: -50 °C ... +100 °C
Normativa: DIN IEC/TS 62561-8 (VDE V 0185-561-8)

Producto DEHN
Tipo: DIDH 7.10 690 BP V2A GFK
art. no.: 106100
o equivalente

Certificados

 

Datos técnicos

Inserción del soporte de conductores Rd 7-10 mm
Material del soporte de conductores INOX
Longitud (l1) 690 mm
Distancia de aislamiento (l2) 605 mm
Sujeción [8x] Ø5,1 / [4x] 7 x 10 / [2x] 11 x 20 mm
Margen de temperatura permanente -50 °C ... +100 °C
Máx. velocidad de rachas de viento (distancia de soportes 1000 mm, Al Ø8 mm) 198 km/h
Normativa DIN IEC/TS 62561-8 (VDE V 0185-561-8)

Se ha añadido el artículo 106100 a favoritos.

El artículo 106100 ha sido añadido a la cesta de compra.

N.º art. 106105 DIDH 7.10 1030 BP V2A GFK

GTIN 4013364100206, N.º de arancel aduanero (EU): 85389099, Peso bruto: 658.00 g, Empaquetado: 1.00 unidad(es)


Figuras

Más información

Distanciador DEHNiso con soporte de conductores longitud 1030 mm INOX
Distanciador DEHNiso para conductores anulares
montados en zócalo de hormigón (8,5 kg)
con técnica de fijación para cuña (ref. 102 075)
para cumplir la distancia de separación respecto de los componentes
conductores según DIN EN 62305-3 (VDE 0185-305-3)
Barra distanciadora (distancia de aislamiento) de poliéster
reforzado con fibra de vidrio (PRFV) Ø16 mm,
Factor de material km = 0,7
Color gris alba, estabilizado a rayos ultravioleta.
Las dimensiones de los distanciadores se realizan según
el Eurocódigo 1 (DIN EN 1991-1-4 + DIN EN 1991-1-4/NA) para una
máx. velocidad de rachas de viento (distancia de soportes 1,0 m, Al D 8-10 mm)
de 140 km/h.
Inserción del soporte de conductores Rd: 7-10 mm
Material del soporte de conductores: INOX
Longitud: 1030 mm
Distancia de aislamiento: 945 mm
Margen de temperatura permanente: -50 °C ... +100 °C
Normativa: DIN IEC/TS 62561-8 (VDE V 0185-561-8)

Producto DEHN
Tipo: DIDH 7.10 1030 BP V2A GFK
art. no.: 106105
o equivalente

Certificados

 

Datos técnicos

Inserción del soporte de conductores Rd 7-10 mm
Material del soporte de conductores INOX
Longitud (l1) 1030 mm
Distancia de aislamiento (l2) 945 mm
Sujeción [8x] Ø5,1 / [4x] 7 x 10 / [2x] 11 x 20 mm
Margen de temperatura permanente -50 °C ... +100 °C
Máx. velocidad de rachas de viento (distancia de soportes 1000 mm, Al Ø8 mm) 140 km/h
Normativa DIN IEC/TS 62561-8 (VDE V 0185-561-8)

Se ha añadido el artículo 106105 a favoritos.

El artículo 106105 ha sido añadido a la cesta de compra.


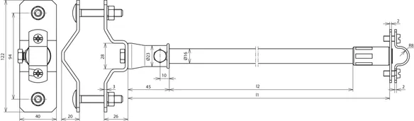
Con soporte para picas y abrazadera de tubo

3 Productos

N.º art. 106225 DIDH 16 530 RS40.60 V2A

GTIN 4013364100299, N.º de arancel aduanero (EU): 85389099, Peso bruto: 684.00 g, Empaquetado: 1.00 unidad(es)


Figuras

Más información

Distanciador DEHNiso con soporte para picas longitud 530 mm INOX
Distanciador DEHNiso para fijar varillas captadoras,
por ejemplo, a tubos o mástiles
para cumplir la distancia de separación respecto de los componentes
conductores según DIN EN 62305-3 (VDE 0185-305-3)
Barra distanciadora (distancia de aislamiento) de poliéster
reforzado con fibra de vidrio (PRFV) Ø16 mm,
Factor de material km = 0,7
Color gris alba, estabilizado a rayos ultravioleta.
Las dimensiones de los distanciadores se realizan según
el Eurocódigo 1 (DIN EN 1991-1-4 + DIN EN 1991-1-4/NA)
en combinación con una varilla captadora de 16/10 mm
(longitud libre de 2,0 m / longitud de sujeción de 0,5 a 1,0 m).
Inserción del soporte de conductores Rd: 16 mm
Material del soporte de conductores: INOX
Longitud: 530 mm
Distancia de aislamiento: 445 mm
Margen de apriete (tubo): 40-60 mm (1 1/4-2")
Margen de temperatura permanente: -50 °C ... +100 °C
Normativa: DIN IEC/TS 62561-8 (VDE V 0185-561-8)

Producto DEHN
Tipo: DIDH 16 530 RS40.60 V2A
art. no.: 106225
o equivalente

Certificados

 

Datos técnicos

Inserción del soporte de conductores Rd 16 mm
Material del soporte de conductores INOX
Longitud (l1) 530 mm
Distancia de aislamiento (l2) 445 mm
Margen de apriete (tubo) 40-60 mm (1 1/4-2")
Margen de temperatura permanente -50 °C ... +100 °C
Normativa DIN IEC/TS 62561-8 (VDE V 0185-561-8)

Se ha añadido el artículo 106225 a favoritos.

El artículo 106225 ha sido añadido a la cesta de compra.

N.º art. 106226 DIDH 16 690 RS40.60 V2A

GTIN 4013364098930, N.º de arancel aduanero (EU): 85389099, Peso bruto: 722.20 g, Empaquetado: 1.00 unidad(es)


Figuras

Más información

Distanciador DEHNiso con soporte para picas longitud 690 mm INOX
Distanciador DEHNiso para fijar varillas captadoras,
por ejemplo, a tubos o mástiles
para cumplir la distancia de separación respecto de los componentes
conductores según DIN EN 62305-3 (VDE 0185-305-3)
Barra distanciadora (distancia de aislamiento) de poliéster
reforzado con fibra de vidrio (PRFV) Ø16 mm,
Factor de material km = 0,7
Color gris alba, estabilizado a rayos ultravioleta.
Las dimensiones de los distanciadores se realizan según
el Eurocódigo 1 (DIN EN 1991-1-4 + DIN EN 1991-1-4/NA)
en combinación con una varilla captadora de 16/10 mm
(longitud libre de 2,0 m / longitud de sujeción de 0,5 a 1,0 m).
Inserción del soporte de conductores Rd: 16 mm
Material del soporte de conductores: INOX
Longitud: 690 mm
Distancia de aislamiento: 605 mm
Margen de apriete (tubo): 40-60 mm (1 1/4-2")
Margen de temperatura permanente: -50 °C ... +100 °C
Normativa: DIN IEC/TS 62561-8 (VDE V 0185-561-8)

Producto DEHN
Tipo: DIDH 16 690 RS40.60 V2A
art. no.: 106226
o equivalente

Certificados

 

Datos técnicos

Inserción del soporte de conductores Rd 16 mm
Material del soporte de conductores INOX
Longitud (l1) 690 mm
Distancia de aislamiento (l2) 605 mm
Margen de apriete (tubo) 40-60 mm (1 1/4-2")
Margen de temperatura permanente -50 °C ... +100 °C
Normativa DIN IEC/TS 62561-8 (VDE V 0185-561-8)

Se ha añadido el artículo 106226 a favoritos.

El artículo 106226 ha sido añadido a la cesta de compra.

N.º art. 106228 DIDH 16 1030 RS40.60 V2A

GTIN 4013364100305, N.º de arancel aduanero (EU): 85389099, Peso bruto: 877.60 g, Empaquetado: 1.00 unidad(es)


Figuras

Más información

Distanciador DEHNiso con soporte para picas longitud 1030 mm INOX
Distanciador DEHNiso para fijar varillas captadoras,
por ejemplo, a tubos o mástiles
para cumplir la distancia de separación respecto de los componentes
conductores según DIN EN 62305-3 (VDE 0185-305-3)
Barra distanciadora (distancia de aislamiento) de poliéster
reforzado con fibra de vidrio (PRFV) Ø16 mm,
Factor de material km = 0,7
Color gris alba, estabilizado a rayos ultravioleta.
Las dimensiones de los distanciadores se realizan según
el Eurocódigo 1 (DIN EN 1991-1-4 + DIN EN 1991-1-4/NA)
en combinación con una varilla captadora de 16/10 mm
(longitud libre de 2,0 m / longitud de sujeción de 0,5 a 1,0 m).
Inserción del soporte de conductores Rd: 16 mm
Material del soporte de conductores: INOX
Longitud: 1030 mm
Distancia de aislamiento: 945 mm
Margen de apriete (tubo): 40-60 mm (1 1/4-2")
Margen de temperatura permanente: -50 °C ... +100 °C
Normativa: DIN IEC/TS 62561-8 (VDE V 0185-561-8)

Producto DEHN
Tipo: DIDH 16 1030 RS40.60 V2A
art. no.: 106228
o equivalente

Certificados

 

Datos técnicos

Inserción del soporte de conductores Rd 16 mm
Material del soporte de conductores INOX
Longitud (l1) 1030 mm
Distancia de aislamiento (l2) 945 mm
Margen de apriete (tubo) 40-60 mm (1 1/4-2")
Margen de temperatura permanente -50 °C ... +100 °C
Normativa DIN IEC/TS 62561-8 (VDE V 0185-561-8)

Se ha añadido el artículo 106228 a favoritos.

El artículo 106228 ha sido añadido a la cesta de compra.


Con soporte para picas y abrazadera de banda para tubo

3 Productos

N.º art. 106245 DIDH 16 530 SB50.300 V2A

GTIN 4013364100336, N.º de arancel aduanero (EU): 85389099, Peso bruto: 561.40 g, Empaquetado: 1.00 unidad(es)


Figuras

Más información

Distanciador DEHNiso con soporte para picas longitud 530 mm INOX
Distanciador DEHNiso para fijar varillas captadoras,
por ejemplo, a tubos o mástiles
para cumplir la distancia de separación respecto de los componentes
conductores según DIN EN 62305-3 (VDE 0185-305-3)
Barra distanciadora (distancia de aislamiento) de poliéster
reforzado con fibra de vidrio (PRFV) Ø16 mm,
Factor de material km = 0,7
Color gris alba, estabilizado a rayos ultravioleta.
Las dimensiones de los distanciadores se realizan según
el Eurocódigo 1 (DIN EN 1991-1-4 + DIN EN 1991-1-4/NA)
en combinación con una varilla captadora de 16/10 mm
(longitud libre de 2,0 m / longitud de sujeción de 0,5 a 1,0 m).
Inserción del soporte de conductores Rd: 16 mm
Material del soporte de conductores: INOX
Longitud: 530 mm
Distancia de aislamiento: 445 mm
Margen de apriete (tubo): 50-300 mm
Margen de temperatura permanente: -50 °C ... +100 °C
Normativa: DIN IEC/TS 62561-8 (VDE V 0185-561-8)

Producto DEHN
Tipo: DIDH 16 530 SB50.300 V2A
art. no.: 106245
o equivalente

Certificados

 

Datos técnicos

Inserción del soporte de conductores Rd 16 mm
Material del soporte de conductores INOX
Longitud (l1) 530 mm
Distancia de aislamiento (l2) 445 mm
Margen de apriete (tubo) 50-300 mm
Margen de temperatura permanente -50 °C ... +100 °C
Normativa DIN IEC/TS 62561-8 (VDE V 0185-561-8)

Se ha añadido el artículo 106245 a favoritos.

El artículo 106245 ha sido añadido a la cesta de compra.

N.º art. 106246 DIDH 16 690 SB50.300 V2A

GTIN 4013364098954, N.º de arancel aduanero (EU): 85389099, Peso bruto: 608.10 g, Empaquetado: 1.00 unidad(es)


Figuras

Más información

Distanciador DEHNiso con soporte para picas longitud 690 mm INOX
Distanciador DEHNiso para fijar varillas captadoras,
por ejemplo, a tubos o mástiles
para cumplir la distancia de separación respecto de los componentes
conductores según DIN EN 62305-3 (VDE 0185-305-3)
Barra distanciadora (distancia de aislamiento) de poliéster
reforzado con fibra de vidrio (PRFV) Ø16 mm,
Factor de material km = 0,7
Color gris alba, estabilizado a rayos ultravioleta.
Las dimensiones de los distanciadores se realizan según
el Eurocódigo 1 (DIN EN 1991-1-4 + DIN EN 1991-1-4/NA)
en combinación con una varilla captadora de 16/10 mm
(longitud libre de 2,0 m / longitud de sujeción de 0,5 a 1,0 m).
Inserción del soporte de conductores Rd: 16 mm
Material del soporte de conductores: INOX
Longitud: 690 mm
Distancia de aislamiento: 605 mm
Margen de apriete (tubo): 50-300 mm
Margen de temperatura permanente: -50 °C ... +100 °C
Normativa: DIN IEC/TS 62561-8 (VDE V 0185-561-8)

Producto DEHN
Tipo: DIDH 16 690 SB50.300 V2A
art. no.: 106246
o equivalente

Certificados

 

Datos técnicos

Inserción del soporte de conductores Rd 16 mm
Material del soporte de conductores INOX
Longitud (l1) 690 mm
Distancia de aislamiento (l2) 605 mm
Margen de apriete (tubo) 50-300 mm
Margen de temperatura permanente -50 °C ... +100 °C
Normativa DIN IEC/TS 62561-8 (VDE V 0185-561-8)

Se ha añadido el artículo 106246 a favoritos.

El artículo 106246 ha sido añadido a la cesta de compra.

N.º art. 106248 DIDH 16 1030 SB50.300 V2A

GTIN 4013364100343, N.º de arancel aduanero (EU): 85389099, Peso bruto: 762.00 g, Empaquetado: 1.00 unidad(es)


Figuras

Más información

Distanciador DEHNiso con soporte para picas longitud 1030 mm INOX
Distanciador DEHNiso para fijar varillas captadoras,
por ejemplo, a tubos o mástiles
para cumplir la distancia de separación respecto de los componentes
conductores según DIN EN 62305-3 (VDE 0185-305-3)
Barra distanciadora (distancia de aislamiento) de poliéster
reforzado con fibra de vidrio (PRFV) Ø16 mm,
Factor de material km = 0,7
Color gris alba, estabilizado a rayos ultravioleta.
Las dimensiones de los distanciadores se realizan según
el Eurocódigo 1 (DIN EN 1991-1-4 + DIN EN 1991-1-4/NA)
en combinación con una varilla captadora de 16/10 mm
(longitud libre de 2,0 m / longitud de sujeción de 0,5 a 1,0 m).
Inserción del soporte de conductores Rd: 16 mm
Material del soporte de conductores: INOX
Longitud: 1030 mm
Distancia de aislamiento: 945 mm
Margen de apriete (tubo): 50-300 mm
Margen de temperatura permanente: -50 °C ... +100 °C
Normativa: DIN IEC/TS 62561-8 (VDE V 0185-561-8)

Producto DEHN
Tipo: DIDH 16 1030 SB50.300 V2A
art. no.: 106248
o equivalente

Certificados

 

Datos técnicos

Inserción del soporte de conductores Rd 16 mm
Material del soporte de conductores INOX
Longitud (l1) 1030 mm
Distancia de aislamiento (l2) 945 mm
Margen de apriete (tubo) 50-300 mm
Margen de temperatura permanente -50 °C ... +100 °C
Normativa DIN IEC/TS 62561-8 (VDE V 0185-561-8)

Se ha añadido el artículo 106248 a favoritos.

El artículo 106248 ha sido añadido a la cesta de compra.


Con soporte de conductores DEHNgrip

Para montaje en p. ej. zócalos de hormigón (Art Nº 102 075), guiado suelto del conductor.

1 Producto

N.º art. 106160 DIDH 8 675 KT V2A GFK

GTIN 4013364092938, N.º de arancel aduanero (EU): 85389099, Peso bruto: 286.50 g, Empaquetado: 1.00 unidad(es)

Predecesor

Figuras

Más información

Distanciador DEHNiso con soporte de conductores DEHNgrip longitud 675 mm INOX
Distanciador DEHNiso para conductores anulares
montados en zócalo de hormigón con técnica de fijación para cuña para cumplir la
distancia de separación respecto de los componentes conductores según DIN
EN 62305-3 (VDE 0185-305-3)
Barra distanciadora (distancia de aislamiento) de poliéster
reforzado con fibra de vidrio (PRFV) Ø16 mm,
Factor de material km = 0,7
Color gris alba, estabilizado a rayos ultravioleta.
Las dimensiones de las varillas captadoras se realizan según el
Eurocódigo 1 (DIN EN 1991-1-4 + DIN EN 1991-1-4/NA) para una
máx. velocidad de rachas de viento de 176 km/h.
Inserción del soporte de conductores Rd: 8 mm
Material del soporte de conductores: INOX
Longitud: 675 mm
Distancia de aislamiento: 590 mm
Margen de temperatura permanente: -50 °C ... +100 °C
Máx. velocidad de rachas de viento (zócalo de 8,5 kg, distancia de soportes 1000 mm, Al Ø8 mm): 104 km/h
Máx. velocidad de rachas de viento (zócalo de 17 kg, distancia de soportes 1000 mm, Al Ø8 mm): 176 km/h
Normativa: DIN IEC/TS 62561-8 (VDE V 0185-561-8)

Producto DEHN
Tipo: DIDH 8 675 KT V2A GFK
art. no.: 106160
o equivalente

Certificados

 

Datos técnicos

Inserción del soporte de conductores Rd 8 mm
Material del soporte de conductores INOX
Longitud (l1) 675 mm
Distancia de aislamiento (l2) 590 mm
Margen de temperatura permanente -50 °C ... +100 °C
Máx. velocidad de rachas de viento (zócalo de 8,5 kg, distancia de soportes 1000 mm, Al Ø8 mm) 104 km/h
Máx. velocidad de rachas de viento (zócalo de 17 kg, distancia de soportes 1000 mm, Al Ø8 mm) 176 km/h
Normativa DIN IEC/TS 62561-8 (VDE V 0185-561-8)

Se ha añadido el artículo 106160 a favoritos.

El artículo 106160 ha sido añadido a la cesta de compra.


Con mini-borna de conexión mutlifunción MMV

Para puntos de cruz, con montaje en zócalo de hormigón (Art Nº 102 075), guiado fijo del conductor.

1 Producto

N.º art. 106150 DIDH 6.10 675 MMV KT V2A GFK

GTIN 4013364092914, N.º de arancel aduanero (EU): 85389099, Peso bruto: 340.00 g, Empaquetado: 1.00 unidad(es)


Figuras

Más información

Distanciador DEHNiso con mini-borna de conexión multifunción MMV longitud 675 mm INOX
Distanciador DEHNiso con mini-borna de conexión multifunción MMV, guiado del conductor fijo,
por ejemplo, para puntos de cruce en conductores anulares
montados en zócalo de hormigón con técnica de fijación para cuña para cumplir
la distancia de separación respecto de los componentes conductores según
DIN EN 62305-3 (VDE 0185-305-3)
Barra distanciadora (distancia de aislamiento) de poliéster
reforzado con fibra de vidrio (PRFV) Ø16 mm,
Factor de material km = 0,7
Color gris alba, estabilizado a rayos ultravioleta.
Las dimensiones de las varillas captadoras se realizan según el
Eurocódigo 1 (DIN EN 1991-1-4 + DIN EN 1991-1-4/NA) para una
máx. velocidad de rachas de viento de 176 km/h.
Inserción del soporte de conductores Rd: 6-10 mm
Material del soporte de conductores: INOX
Longitud: 675 mm
Distancia de aislamiento: 590 mm
Margen de temperatura permanente: -50 °C ... +100 °C
Máx. velocidad de rachas de viento (zócalo de 8,5 kg, distancia de soportes 1000 mm, Al Ø8 mm): 104 km/h
Máx. velocidad de rachas de viento (zócalo de 17 kg, distancia de soportes 1000 mm, Al Ø8 mm): 176 km/h
Normativa: DIN IEC/TS 62561-8 (VDE V 0185-561-8)

Producto DEHN
Tipo: DIDH 6.10 675 MMV KT V2A GFK
art. no.: 106150
o equivalente

Certificados

 

Datos técnicos

Inserción del soporte de conductores Rd 6-10 mm
Material del soporte de conductores INOX
Longitud (l1) 675 mm
Distancia de aislamiento (l2) 590 mm
Margen de temperatura permanente -50 °C ... +100 °C
Máx. velocidad de rachas de viento (zócalo de 8,5 kg, distancia de soportes 1000 mm, Al Ø8 mm) 104 km/h
Máx. velocidad de rachas de viento (zócalo de 17 kg, distancia de soportes 1000 mm, Al Ø8 mm) 176 km/h
Normativa DIN IEC/TS 62561-8 (VDE V 0185-561-8)

Se ha añadido el artículo 106150 a favoritos.

El artículo 106150 ha sido añadido a la cesta de compra.


back to top