Mástil captador para tendido bajo el tejado del cable HVI

Para montaje en soporte de conductor para vigas.Tendido interior del cable HVI en el tubo aislante autosoportado. El cable HVI se lleva a través del tubo de soporte vertical del soporte de conductor para vigas y se tiende en la zona de las traviesas.Ventajas:
  • Tendido bajo tejado: no es visible
  • Montaje con solo un tubo visible
  • No hay solicitaciones mecánicas por ej. por nieve
La longitud mínima de pedido es 6 m. Debe indicarse la longitud del cable al efectuar el pedido (en múltiplos de 0,5 m).Por la producción relacionada al pedido (confección de la longitud del cable) el cable no puede restituirse.

Cable HVI en el tubo autosoportado con varilla captadora

1 Producto

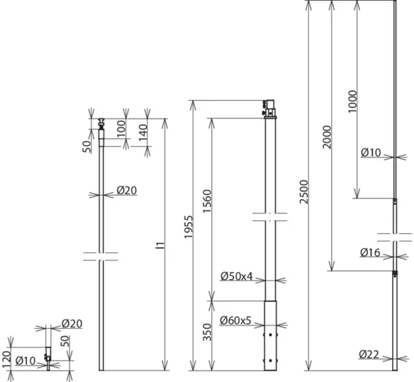
N.º art. 819247 HVI 20 M L6M SR1955 FS2500 DSH GFK AL

GTIN 4013364260900, N.º de arancel aduanero (EU): 85389099, Peso bruto: 7.10 kg, Empaquetado: 1.00 unidad(es)


Figuras

Más información

Mástil captador para tendido bajo la cubierta del cable HVI
Varilla captadora con cable HVI y varilla captadora para
tendido bajo la cubierta para montaje superior en el soporte de conductor para vigas
El cable HVI se conduce por el tubo de soporte del soporte de conductor para vigas
y se tiende en la zona de las viguetas/listones de tejado.
Los tubos autosoportados están dimensionados según el
Eurocódigo 1 (DIN EN 1991-1-4 + DIN EN 1991-1-4/NA).
Cable HVI DEHNcon-H en el tubo autosoportado con terminal
interno especial y varilla captadora con Ø22/16/10 mm y 2500 mm de longitud
Material del tubo aislante autosoportado: poliéster reforzado con fibra de vidrio / Al
Longitud del tubo aislante autosoportado: 1955 mm
Color del cable: negro ●
Material del cable: Cu
Distancia de separación equivalente (en aire): ≤ 75 cm
Longitud mín. de pedido : 6 m
Máx. velocidad del viento : 140 km/h
Normativa: DIN IEC/TS 62561-8 (VDE V 0185-561-8)

Producto DEHN
Tipo: HVI 20 M L6M SR1955 FS2500 DSH GFK AL
art. no.: 819247
o equivalente

Certificados

 

Datos técnicos

Material del tubo aislante autosoportado poliéster reforzado con fibra de vidrio / Al
Longitud del tubo aislante autosoportado 1955 mm
Lungitud de la punta captadora 2500 mm
Diámetro exterior Ø PRFV 50 mm
Diámetro del cable Ø 20 mm
Color del cable negro ●
Material del cable Cu
Distancia de separación equivalente (en aire) ≤ 75 cm
Longitud mín. de pedido 6 m
Máx. velocidad del viento 140 km/h
Normativa DIN IEC/TS 62561-8 (VDE V 0185-561-8)

Se ha añadido el artículo 819247 a favoritos.

El artículo 819247 ha sido añadido a la cesta de compra.


back to top